ハウススタジオについて
JR南武線(浜川崎支線)「浜川崎駅」から徒歩7分、首都高横羽線「浜川崎インター」から約7分にあるハウススタジオです。都内や近県に数多くのハウススタジオを展開する“旧海岸スタジオ”が運営するスタジオで、100年以上の歴史がある日本を代表する鉄工所の一つ「北條鉄工」の当時の基調な建物をベースに部分的にレストアして作られています。
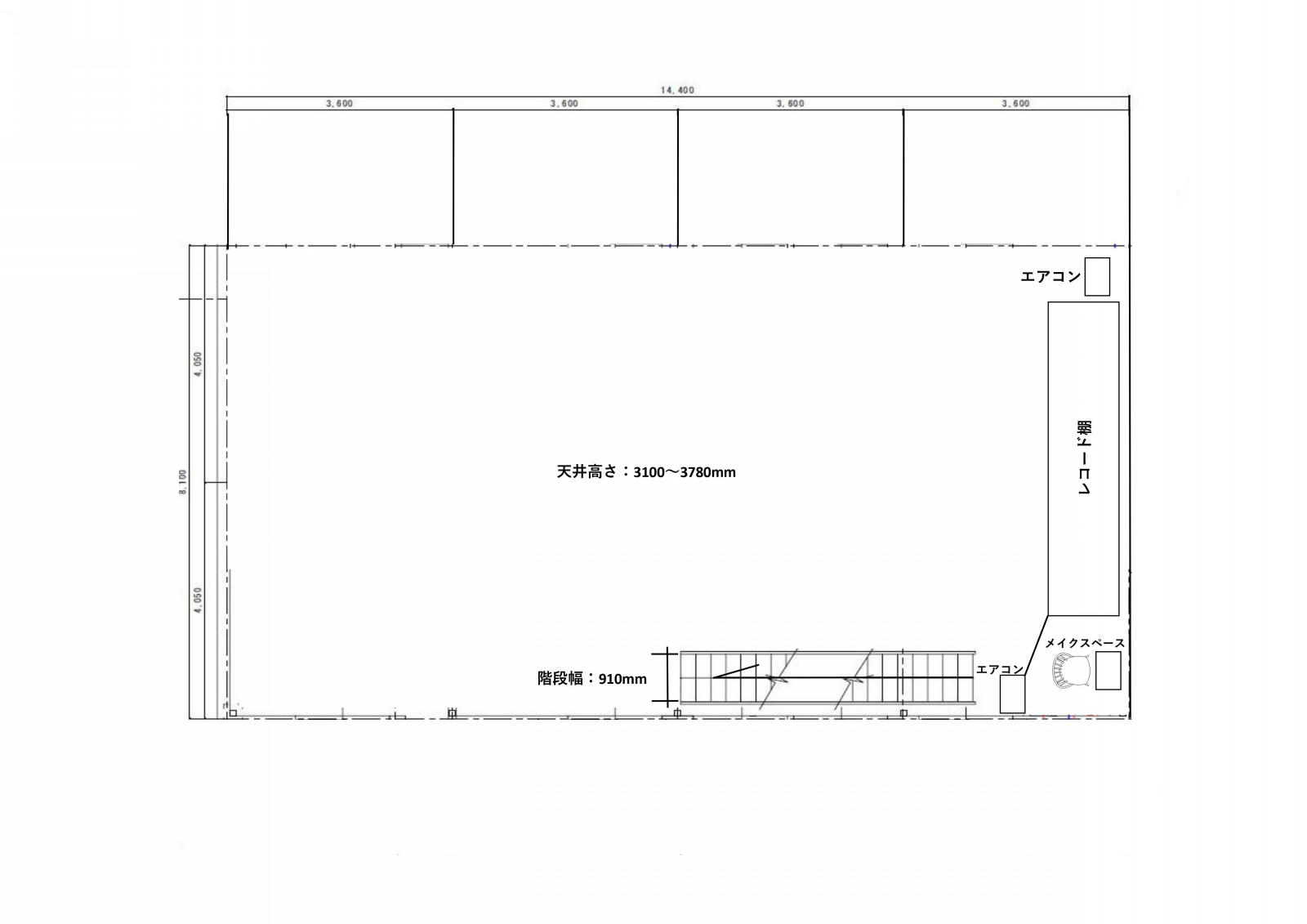
3mを超える天井高と100㎡を超える広々としたインダストリアルな空間に、約10,000枚のレコードが納められた巨大な棚が鎮座し、豊富に取り揃えられたレトロな家具や小物類、バスケットゴールとあいまって、他に類を見ない独特な雰囲気を醸し出しています。窓に囲まれた空間は明るく自然光撮影ができ、日中は音出しの撮影も可能です。
同じ建物内にはモダンでスタイリッシュな空間に仕上げられた「旧海岸第六スタジオ」、280㎡の広さで自由度の高い空間となっている「旧海岸第八スタジオ」があり、同一敷地内でシチュエーションに合わせた撮影をすることができます。
| スタジオ名称 |
旧海岸第七スタジオ |
|---|---|
| 営業時間 | 9:00〜19:00(時間外相談可) |
| 最低利用時間 | 2時間(週末は3時間) |
| 面積 | 106 m2 |
| 天井高さ | 最大3.78m |
| エレベーター有無 | 無 |
| スタジオ電力容量 | 100V/30A |
| 駐車場 | 有り(お問合せください) |
基本料金
| スチール(平日) | ムービー(平日) |
|---|---|
| ¥17,600 | ¥20,900 |
基本料金について補足
- 料金は1時間あたりの金額(税込)です。
- 週末、祝祭日、上記時間外は+20%となります。(週末の最低ご利用時間は、3hとなります。)
- ご予約は、お電話又はメールにてお受けいたします。
- キープ(仮予約)は、3日間お受けいたしますが、本予約のお問い合わせがございましたら、そちらを優先させていただくこともございますのでご了承ください。
- キープの日程が予約日から1週間前までにご連絡がない場合は、キャンセル扱いとさせていただきます。
- 初回のご利用の方は、当日までに銀行振込、または当日現金払いとさせていただきます。
- ご利用時間は入室から退室まで(搬入から搬出まで)を含みます。
- こちらのスタジオは土足厳禁となります。(撮影用の靴のみ)
- 鉄工所が稼働してるときは、騒音がすることもございます。
- 建物が古い為、窓周辺に若干雨漏りがすることもございますがご了承ください。
- 鉄工所のスタジオ以外の場所はくれぐれも立ち入らないようにご注意ください。
- 通常スタジオ使用可能時間は、9:00〜19:00 になります。 時間外のご利用については通常料金に+20%がかかります。
- 土曜日、日曜日、祝祭日は、平日の料金に+20%がかかります。
- ご予約開始時間より、遅れて開始される場合でも、料金チャージは、ご予約開始時間からとなりますので、ご了承ください。
- スタジオアシスタントはおりません。撮影、搬入搬出の補助は行え兼ねませんのでご了承ください。
- 搬入のお時間は、原則ご予約の15分までからとさせていただきます。
- 当スタジオの家具や備品は非常に貴重なビンテージものが多いため、取扱には細心の注意をお願いいたします。
- 撮影される際、スタジオ内に設置されている絵画、ポスターなどは作者の著作権が発生する場合がございますので、自己責任でお願いいたします。
- 無理な家具の移動もご遠慮ください。家具の破損などが起きた場合、速やかにご連絡いただき、弁償していただくこともございますのでご了承ください。
- ご予約時間前の搬入及び入室は、前のお客様の撮影やメンテナンスのためご入室いただけない場合がございます。
- ご予約時に、身分証明書のご提示をいただく場合がございます。
- 宅配便での荷物の送付は、事前にお電話でスケジュールをご確認ください。
- 時間延長は 30分単位で承ります。他の予約が入っている場合、お断りする場合がございます。
- 原則、火気・水気・煙草等の特殊撮影はお断りしております。
- 公序良俗に反する撮影はお断りいたします。
- スタジオ内は全面禁煙となっております。
- スタジオ内の家具、小物等はご自由にご利用いただけますが、大きな家具は必ず2名以上で持ち上げて行い、家具、床などの破損に十分注意してください。破損した場合は補修、弁償させていただきます。また、撮影後は現状復帰をお願いします。
- 壁、床、天井などに釘やビスを使用したり壁を破損させる強力なテープの使用はご遠慮下さい。
- スタジオ使用後に出た粗大ゴミ等はお持ち帰り下さい。
- お持ち込みいただいた、撮影機材・貴重品等の、紛失・破損・盗難等に関する責任は当スタジオでは負いかねますので、お客様自身での管理をお願いいたします。
- ご利用中の事故や怪我等は当スタジオ側では責任を負いません。
- スタジオ外の近隣でロケ撮影をする際は、撮影許可を申請するなど自己責任でお願いいたします。
- ご予約は、お電話もしくは書面にて承ります。ご予約決定後のキャンセルはキャンセル料金が発生します。
- ご予約当日、遅刻する場合は必ずご予約時間の30分前までにお電話でご連絡をお願いします。
- ご連絡がない場合はご予約の時間から利用料金が発生いたします。
- 発電機を使用する場合は事前にご確認ください。
- お申し込み時の撮影内容と異なる場合、近隣に迷惑をかける行為を発見した場合、ご利用規約に違反していると判断した場合は撮影中でもご利用を中止させていただく場合がございます。その場合もお申し込み時の通常料金が発生いたします。
- 駐車場はございますが、工場の稼働時期によって、近隣のコインパーキングをご利用いただくこともございますのでご了承ください。
- スタジオご利用時に、地震などの天災、または不可抗力の自然災害によって、お怪我などされた場合は一切責任を負いかねませんのでご了承ください。
- ご予約を承った場合は当スタジオ利用規約に全て同意いただいたものとしてとさせていただきます。
ロケハンは、1回30分につき、5,500円(税込)頂戴いたしますのでご了承ください。
※スタジオの規定をスタジオホームページでご確認の上、お問い合わせをお願いいたします。
※ページ掲載時点での情報から更新されている可能性がありますので、最新の情報や詳細につきましては、各スタジオまでお問い合わせください。
- 情報引用元
- ホームページ
- https://www.kyu-kaigan-studio7.com/
- メールアドレス
- info@kaigan3.com
- 電話番号
- 03-6453-7625



































































